石材與墻磚、木飾面、軟包相接工藝做法!
- 發布時間:2020-02-01 熱度:

01. 石材與墻磚相接工藝做法

(石材與墻磚相接節點一↑)

(石材與墻磚相接節點二↑)
注意點:
1.分清貼法工藝
2. 對不同材質加以區分
3.石材線條與線條間的拼接關系
4.收口完整
材料分析:
1. 選用米白色大理石20mm,選用12mm玻化磚
2. 石材鋪貼普通硅酸鹽水泥配細沙或粗砂或用石材專用AB膠鋪貼
3. 墻磚用普通硅酸鹽水泥或膠泥鋪貼,石材需做六面防護
4.完成面處理,用專用填縫劑灌縫、擦縫、保潔,專用保護膜做成品保護
詳細工序:
準備工作--現場放線--材料加工--基層處理--水泥砂漿結合層--石材專用AB膠--鋪貼石材、墻磚--灌封、擦縫--完成面處理
02. 石材與木飾面平接工藝做法

(石材與木飾面節點一↑)

(石材與木飾面節點二↑)
注意點:
1. 木飾面留V型縫或留凹槽,大于5mm貼木皮,小于5mm作色。
2. 木飾面安裝從上到下,最后一塊板活動。
3. 先安裝石材,后安裝木飾面。
材料分析:
1. 選用指定加工石材20mm倒角20*5mm,定制成品木飾面基礎材料多層板
2. 用石材專AB膠鋪貼,木飾面基礎需做三防處理
3. 石材需做六面防護
4. 完成面處理,保證石材與木飾面拼接縫完整,石材做拋光處理,專用保護膜做成品保護
詳細工序:
準備工作--現場放線--材料加工--基層處理--輕鋼龍骨隔墻制作--木飾面基礎固定--石材專用AB膠--鋪貼石材--成品木飾面安裝--完成面處理
其它收口:

(石材與木飾面陰角節點一↑)

(石材與木飾面陰角節點二↑)

(石材與木飾面陽角節點一 ↑)

(石材與木飾面相接節點一↑)
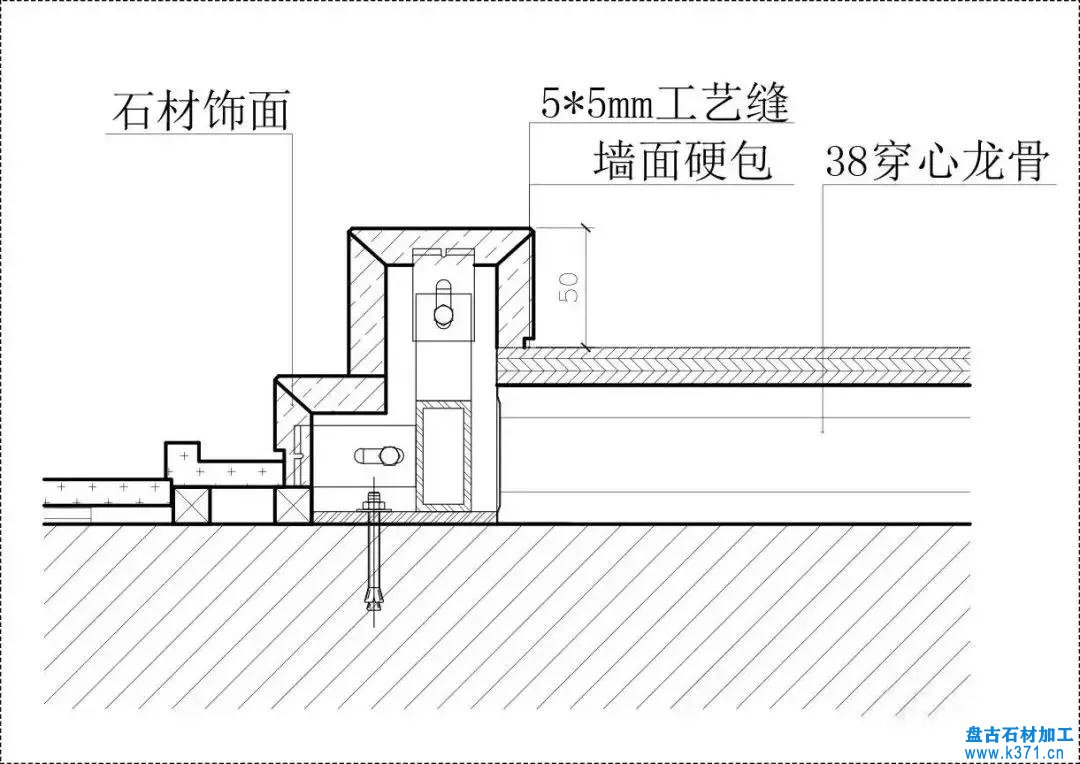
03. 石材與軟包相接工藝做法

(石材與軟包相接節點一↑)

(石材與軟包相接節點二↑)
注意點:
1. 由于其材質特殊在施工時要注意工序、材料保護,成品保護。
2. 由于軟包存在可變性所以造型、樣式不一,對此一定要注意造型規格與材料尺。
材料分析:
1. 輕鋼龍骨隔墻材料,選用指定石材加工,軟包基層固定、其他材料防火夾板
2. 用石材專用膠固定安裝,軟包基層需做三防處理,石材需做六面防護
3. 完成面處理,專用保護膜做成品保護
祥細工序:
準備工作--現場放線--材料加工--基層處理--輕鋼龍骨隔墻制作--基層防火板固定--石材專用粘結劑--鋪貼石材--成品軟包安裝--完成面處理

(石材與硬包相接節點二↑)
注意點:
1. 由于其材質特殊在施工時要注意工序、材料保護,成品保護。
2. 由于硬包存在可變性所以造型、樣式不一,對此一定要注意造型規格與材料尺。
材料分析:
1. 輕鋼龍骨隔墻材料,選用指定石材加工
2. 硬包基層固定、其他材料輕鋼龍骨,用石材專用膠固定安裝
3. 硬包基層需做三防處理,石材需做六面防護
4. 完成面處理
詳細工序:
準備工作--現場放線--材料加工--基層處理--輕鋼龍骨隔墻制作--基層龍骨、基層板固定--石材專用粘結劑--鋪貼石材--成品硬包安裝--完成面處理
- 上一篇:特殊部位石材的特殊設計處理 返回首頁 返回上頁 下一篇:哎呀,沒有啦